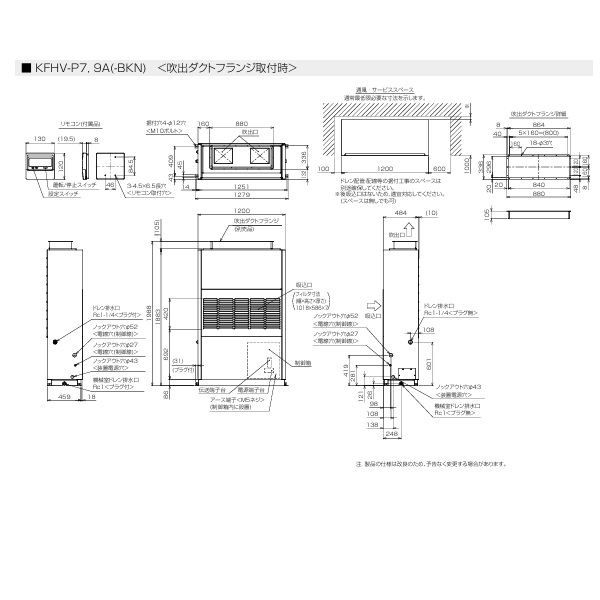
三菱 KFHV-P7A 産業用除湿機 除湿専用 床置形(インバータタイプ) 三相200V ♪ [戻る]