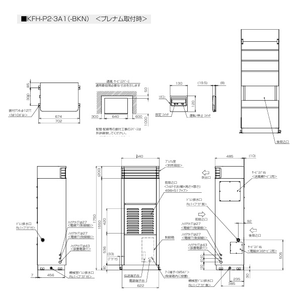
三菱 KFH-P2A1 産業用除湿機 除湿専用 床置形 三相200V ♪ [戻る]