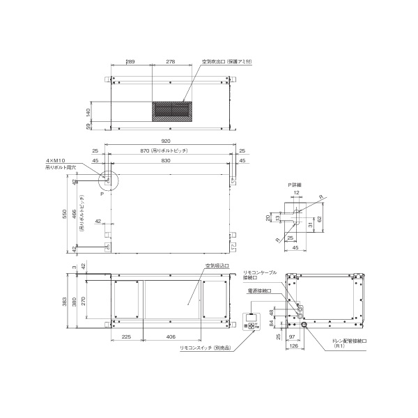
日立 RK-NP08CV1 業務用・産業用除湿器 小型天吊タイプ インバーター型 再熱専用機 0.8馬力 ♪ [戻る]