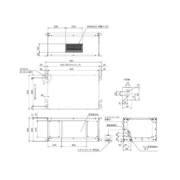
日立 RK-NP12CV1 業務用・産業用除湿器 小型天吊タイプ インバーター型 再熱専用機 1.2馬力 ♪ [戻る]